RS型柔性套管式伸縮器又稱套管式伸縮器,熱力管道伸縮器,管道伸縮器等。 RS型柔性套管式伸縮器主要具有壽命長、方便、耐用等性能,解決了原套管式伸縮器不產生偏角的問題,本產品很大偏角可達5.85度。RS型柔性套管式伸縮器在普通的松套伸縮接頭的基礎上通過調整本體的形狀,使得松套伸縮接頭能夠具有一定量的角向位移,從而更好地適應管道線路的實際使用環境。
1. RS型柔性套管式伸縮器解決了原套管式伸縮器不產生偏角的問題,本產品很大偏角可達5.85度;
2. 表中長度數值,均系無偏角時的數值;
3. 本伸縮器由橡膠圈密封,伸縮器本身不能承受軸向拉力,一般將它安裝在平直管道上。若靠近彎管或丁字管安裝則應設置管道支墩,以免將伸縮器拉脫而漏水;
4. 本伸縮器中單盤短管可用外徑的鑄鐵直管代替;
5. 套管式伸縮器該產品為各種給排水管道、水塔、水泵、水表、閥門的安裝拆換提供了極大方便,給長距離管路因溫差伸縮起到了很好的調節作用。
6. 套管式伸縮器該產品內管材分為鑄鐵(HT)、鍍鋅(DX)和鋼制(SF)三種。法蘭連接尺寸采用9115.1-2000標準;p>
【產品別名】:套管式伸縮接頭
【產品規格】:【DN40mm-DN1600mm】
【產品】:
【適用范圍】:【弱酸、弱堿、弱腐蝕類、油、熱水、冷水等】
【產品材質】:碳鋼,球墨鑄鐵,不銹鋼.
【產品顏色】:藍色,可根據客戶要求調色.
【工作溫度】:-40度至80度
在線咨詢
購買熱線: 021-622-00727
RS型柔性套管式伸縮器解決了原套管式伸縮器不產生偏角的問題,本產品很大偏角可達5.85度。比傳統的伸縮接頭有更好的密封和防拉脫性能,產品適用于輸送海水、淡水、冷熱水、飲用水、生活污水、原油、燃油、潤滑油、成品油、空氣、煤氣、溫度不高于250度的蒸汽和顆粒粉狀等介質。本伸縮器由橡膠圈密封,伸縮器本身不能承受軸向拉力,一般將它安裝在平直觀點管道上。若靠近彎管或丁字管安裝則應設置管道支墩,以免將伸縮器拉脫而漏水,密封性能好,不易泄露。
RS型柔性套管式伸縮器的安裝注意事項:
1、RS型柔性套管式伸縮器在安裝前應先檢查其型號、規格及管道配置情況,必須符合設計要求。
2、嚴禁用伸縮器變形的方法來調整管道的安裝超差,以免影響伸縮器的正常功能、降低使用壽命及增加管系、設備、支承構件的載荷。
3、套管式伸縮器所有活動元件不得被外部構件卡死或限制其活動范圍,應保證各活動部位的正常動作。
4、水壓試驗時,應對裝有伸縮器管路端部的次固定管架進行加固,使管路不發生移動或轉動。對用于氣體介質的伸縮器及其連接管路,要注意充水時是否需要增設臨時支架。以上是針對RS型柔性套管式伸縮器做出的詳細介紹,上海駱盈嚴格按照~產品標準,采用好的技術和頗負盛名的技術人才,出廠每一件產品都經過嚴密的檢驗與檢測,以質量占領市場以誠信贏得客戶。
江蘇與上海、浙江、安徽共同構成的長江三角洲城市群已成為6大盛名城市群之一。江蘇人均GDP、綜合競爭力、地區發展與民生指數(DLI)均居全國各省~,成為中國綜合發展水平很高的省份,已步入中上等發達~水平。江蘇地區特別是它的管道行業發展更是極為迅猛。
套管式伸縮器是通過體管、伸縮管、壓蘭、密封圈組成的,現在,套管式伸縮器比較適合應用于給排水工程,為城鎮的自來水塔、泵房水表、閥門的安裝、拆換提供了方便,套管式伸縮器對長距離管道使用的溫差所引起的伸縮問題,也起到了很好的填補作用。
既然套管式伸縮器有這么好的用處,那么如何安裝套管式伸縮器,就需要注意的事項有以下幾點了:
1、安裝長度很好在很大和很小的長度之間,這樣可以根據實際情況或者出現的問題可以進行調整。一般情況下選擇在套管式伸縮器伸縮量的二分之一處為標準。
2、套管式伸縮器在安裝的時候,必須要松開壓盤螺栓,調整好安裝的長度,然后再對角把螺栓擰緊,千萬不要壓偏,以免起到止漏的作用。
3、伸縮器必須安裝在止回閥的后部。
4、伸縮器就像架空使用,兩端必須要安裝相應的固定支架,其自身是不會承受軸向拉力的,在必要的時候,是可以加防拉脫裝置的。
駱盈管道生產的套管式伸縮器具有良好的位移補償功能,使用壽命長,伸縮量大。正因為伸縮器擁有良好的綜合性能,因此,它能廣泛的應用于化工、建筑、給水、排水、石油、輕重工業、冷凍、衛生、水暖、消防、電力等基礎工程的。

請點擊圖片看大圖
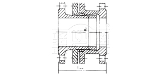
| 序號No. | 名稱Name | 數量Quantity | 材料Material |
| 1 | 本體Body | 1 | QT400-15,Q235A,ZG230-450,20 |
| 2 | 密封圈Gasket | 1 | NBR |
| 3 | 壓蓋Cover | 1 | QT400-15,Q235A,ZG230-450,20 |
| 4 | 螺母Nut | 6n | Q235A,20,1Cr8Ni9Ti |
| 5 | 螺柱bolt | n | Q235A,35,1Cr8Ni9Ti |
請點擊圖片看大圖
|
公稱通徑 |
長度Length(L) | ||
| 很小(min.)L | 安裝Installation Length L | 很大(max.)L | |
| 40 |
140 |
160 |
180 |
| 50 |
145 |
165 |
185 |
| 65 | 145 |
165 |
185 |
| 80 | 160 |
180 |
200 |
| 100 |
170 |
180 |
210 |
| 125 |
170 |
190 |
210 |
| 150 | 175 |
190 |
215 |
| 200 | 180 |
195 |
220 |
| 250 | 235 |
200 |
285 |
| 300 |
250 |
260 |
310 |
| 350 | 265 |
280 |
335 |
| 400 | 280 |
300 |
360 |
| 450 | 295 |
320 |
385 |
| 500 | 310 |
340 |
410 |
| 600 | 340 |
360 |
460 |
| 700 |
370 |
400 |
510 |
| 800 | 400 |
440 |
540 |
| 900 | 430 |
470 |
570 |
| 1000 | 450 |
500 |
600 |
| 1200 | 475 |
525 |
625 |
| 1400 | 500 |
550 |
660 |
| 1600 | 530 |
610 |
690 |
專業制造、專業服務,駱盈為你創造更多價值 !
不斷提升服務質量,精益求精,“真誠的服務”是駱盈永恒的主題。駱盈嚴格按照 要求,質量嚴格把關,責任到人,確保生產、銷售、服務的健康運行。加強與用戶溝通,竭誠為廣大客戶提供優質產品,至善至美服務,特此駱盈做出如下承諾:
產品標準
產品嚴格按照中國 GB、HG 標準和美國 API 等標準設計、制造、驗收。密封面硬度達到規定要求,寬度超過標準。
售前服務
產品介紹,技術交流,非標產品設計,疑難解答。
售中服務
1、守信合同,保證及時供貨,隨時保持與客戶聯系
2、對特殊或復雜的產品,我廠安排技術人員對用戶進行產品使用、故障排除、調式及維修進行培訓和指導。
售后服務
1、駱盈產品質保期為自出廠起 12 個月,實行“三包”服務(包退、包換、包修)。
2、產品在使用中我廠定期組織技術、檢查人員進行訪問,征詢用戶對產品質量、使用狀況、改進意見等方面的反饋,以便進一步提高產品質量。
3、對用戶投訴產品質量問題,快速做出反映,售后服務人員在 24-36 小時(省外 48 小時)趕赴現場。
4、對售后服務,要求用戶填寫服務后的質量反饋表,并做出鑒定意見,共同提高駱盈的產品質量與服務質量。
1、客戶采購清單請傳真至 021-64207088 E-mail:luoying@luoyingsh.com,或來電咨詢 021-62212627。
2、收到客戶采購清單,為客戶提供產品型號選型與報價(價格清單)。
3、具體商定:交貨期、特殊要求等事宜。
訂貨須知
1、客戶對產品有特殊要求,須在訂貨合同中提供以下說明:
(1)結構長度
(2)連接形式
(3)公稱直徑、全通徑、縮徑、管道尺寸
(4)用介質及溫度、壓力范圍
(5)實驗、檢驗標準及其他要求本廠可根據客戶特殊要求配置定做和設計特殊產品。
2、本廠可根據客戶特殊要求配置定做和設計特殊產品。
3、如由客戶提供確定的產品類型和型號時,客戶應正確說明其型號的含義和要求,在供需雙方理解一致的條件下簽訂合同。
您也可以聯系在線客服