BF(VSSJA-1)單法蘭限位伸縮接頭是由松套伸縮接頭和一個限位短管組合而成。單法蘭松套限位伸縮接頭使用于一邊與法蘭連接,一邊與管道焊接,安裝時調整產品兩端與管道或法蘭的安裝長度,對角均勻擰緊壓蓋螺栓,再調整好限位螺母,這樣就能讓管道在伸縮量范圍內可以自由伸縮,鎖定伸縮量,管道的安全運行。
產品名稱:VSSJA-1單法蘭限位伸縮接頭(BF單法蘭松套限位補償接頭)
產品別名:單法蘭伸縮接頭 單法蘭限位伸縮
產品規格:【DN65mm-DN3600mm】
產品壓力:0.6-1.0MPa
產品:
適用范圍:【弱酸、弱堿、弱腐蝕類、油、熱水、冷水等】
產品材質:碳鋼,球墨鑄鐵,不銹鋼
產品顏色:藍色,可根據客戶要求調色。
工作溫度:-40度至80度
在線咨詢
購買熱線: 021-622-00727
BF(VSSJA-1)單法蘭限位伸縮接頭能夠實現管道軸向位移的補償,并且能夠大大減少管道運行時的軸向推力,從而延長管道的使用壽命,保護線路的安全運行。單法蘭松套限位伸縮接頭能防止管道因超量位移導致補償接頭的泄漏或損壞,主要用于在允許位移范圍內吸收軸向位移和緩解軸向壓力推力的管道松套連接,實現了管道一邊法蘭連接,一邊為焊接的不一致性的方便連接。并且安裝在管道線路上能夠方便閥門的拆裝與維護,并且能夠克服地陷對管道線路造成的不良影響。BF(VSSJA-1)單法蘭限位伸縮接頭適用于輸送海水、淡水、冷熱水、飲用水、生活污水、原油、燃油、潤滑油、成品油、空氣、煤氣、溫度不高于250度的蒸汽和顆粒粉狀等介質。
BF(VSSJA-1)單法蘭松套限位伸縮接頭使用于一邊與法蘭連接,一邊與管道焊接,安裝時調整產品兩端與管道或法蘭的安裝長度,對角均勻擰緊壓蓋螺栓,再調整好限位螺母,這樣就能讓管道在伸縮量范圍內可以自由伸縮,鎖定伸縮量,管道的安全運行。
1 伸縮量大,使用壽命長。
2 方便閥門的拆裝,有利于管線的定期維護。
3 本產品能夠有效地起到保護管線避免受到地陷帶來的不良影響。
4 材質優良,運行穩定。
太湖新城小學、逸林商務廣場、太湖文化中心(一期商業)……昨日,吳中區開發區舉行了25個重大項目集中開工儀式,這25個重大項目主要涉及高端制造業、現代服務業、基礎設施和民生事業等領域。2016年,吳中區計劃安排306個、總投資1573億元的重點建設項目。
逸林商務廣場項目位于東太湖路以北、旺山西路以西地塊,占地面積152畝,建筑面積為50萬平方米,總投資23億元。項目將建設成為集商務中心、四星酒店、五星酒店、酒店式公寓、商務辦公和商業于一體的城市綜合體,成為太湖新城的活動中心。太湖新城小學項目位于蘇州太湖新城,北至天三路,南至濱湖路,占地規模4.88萬平方米,總建筑面積5.67萬平方米,總投資3.6億元。項目分別由科技體驗中心樓、低年級教學樓、中年級教學樓、高年級教學樓、專業課樓、活動中心樓、餐廳樓等組成,共設八軌48班。
上海駱盈作為此次項目的管道配件限位伸縮接頭的主要供應商將嚴格按照~標準和用戶的實際環境要求供應優質高效的伸縮器產品,確保產品能夠有效的運行。

請點擊圖片看大圖
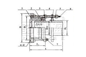
| 序號No. | 名稱Name | 數量Quantity | 材料Material |
| 1 | 本體Body | 1 | QT400-15,Q235A,ZG230-450,20 |
| 2 | 密封圈Gasket | 1 | NBR |
| 3 | 壓蓋Cover | 1 | QT400-15,Q235A,ZG230-450,20 |
| 4 | 限位短管Limited short pipe | 1 | Q234A,20,16Mn |
| 5 | 螺母Nut | 4n | Q235A,20,1Cr8Ni9Ti |
| 6 | 長螺柱Long Stud | n | Q235A,35,1Cr8Ni9Ti |
| 7 | 螺柱bolt | n | Q235A,35,1Cr8Ni9Ti |
請點擊圖片看大圖
|
公稱通徑 Nominal iameter DN |
管子外徑 External diameter of pipe DW |
外徑尺寸 Length |
伸縮量Compensation
δ |
法蘭連接尺寸 Flange connecting dimension | |||||||
| 0.6Mpa | 1.0Mpa | ||||||||||
| DW | D0 | L | L1 | D | D1 | n-do | D | D1 | n-do | ||
| 65 | 76 | 76 | 340 | 105 | 25 | 160 | 130 |
4-Ф14 |
185 | 145 | 8-Ф18 |
| 80 | 89 | 89 | 190 | 150 | 4-Ф18 | 200 | 160 | ||||
| 100 | 108 | 108 | 210 | 170 | 220 | 180 | |||||
| 114 | 114 | ||||||||||
| 125 | 133 | 133 | 240 | 200 | 8-Ф18 | 250 | 210 | ||||
| 140 | 140 | ||||||||||
| 150 | 159 | 159 | 265 | 225 | 285 | 240 | 8-Ф22 | ||||
| 168 | 168 | ||||||||||
| 200 | 219 | 219 | 320 | 280 | 340 | 295 | |||||
| 250 | 273 | 273 | 375 | 335 | 12-Ф18 | 395 | 350 | 12-Ф22 | |||
| 300 | 325 | 325 | 350 | 130 | 32.5 | 440 | 395 | 12-Ф22 | 445 | 400 | |
| 350 | 377 | 377 | 490 | 445 | 505 | 460 | 16-Ф22 | ||||
| 400 | 426 | 426 | 540 | 495 | 16-Ф22 | 565 | 515 | 16-Ф26 | |||
| 450 | 480 | 480 | 595 | 550 | 615 | 565 | 20-Ф26 | ||||
| 500 | 530 | 530 | 645 | 600 | 20-Ф22 | 670 | 620 | ||||
| 600 | 630 | 630 | 755 | 705 | 20-Ф26 | 780 | 725 | 20-Ф30 | |||
| 700 | 720 | 720 | 860 | 810 | 24-Ф26 | 895 | 840 | 24-Ф30 | |||
| 800 | 820 | 820 | 590 | 220 | 65 | 975 | 920 | 24-Ф30 | 1015 | 950 | 24-Ф33 |
| 900 | 920 | 920 | 1075 | 1020 | 1115 | 1050 | 28-Ф33 | ||||
| 1000 | 1020 | 1020 | 1175 | 1120 | 28-Ф30 | 1230 | 1160 | 28-Ф36 | |||
| 1200 | 1220 | 1220 | 1405 | 1340 | 32-Ф33 | 1455 | 1380 | 32-Ф39 | |||
| 1400 | 1420 | 1420 | 1630 | 1560 | 36-Ф36 | 1675 | 1590 | 36-Ф42 | |||
| 1600 | 1620 | 2628 | 1830 | 1760 | 40-Ф36 | 1915 | 1820 | 40-Ф48 | |||
| 1800 | 1820 | 2828 | 2045 | 1970 | 44-Ф40 | 2115 | 2020 | 44-Ф48 | |||
| 2000 | 2020 | 2030 | 2265 | 2180 | 48-Ф42 | 2325 | 2230 | 48-Ф48 | |||
| 2200 | 2220 | 2230 | 2475 | 2390 | 52-Ф42 | 2550 | 2440 | 52-Ф56 | |||
| 2400 | 2420 | 2430 | 2685 | 2600 | 56-Ф42 | 2760 | 2650 | 56-Ф56 | |||
| 2600 | 2620 | 2630 | 600 | 240 | 70 | 2905 | 2810 | 60-Ф48 | 2960 | 2850 | 60-Ф56 |
| 2800 | 2820 | 2830 | 3115 | 3020 | 64-Ф48 | 3180 | 3070 | 64-Ф56 | |||
| 3000 | 3020 | 3030 | 3315 | 3220 | 68-Ф48 | 3405 | 3290 | 68-Ф62 | |||
| 3200 | 3220 | 3230 | 3525 | 3430 | 72-Ф48 | ||||||
| 3400 | 3420 | 3430 | 3735 | 3640 | 76-Ф48 | ||||||
| 3600 | 3620 | 3360 | 3970 | 3860 | 80-Ф56 | ||||||
專業制造、專業服務,駱盈為你創造更多價值 !
不斷提升服務質量,精益求精,“真誠的服務”是駱盈永恒的主題。駱盈嚴格按照 要求,質量嚴格把關,責任到人,確保生產、銷售、服務的健康運行。加強與用戶溝通,竭誠為廣大客戶提供優質產品,至善至美服務,特此駱盈做出如下承諾:
產品標準
產品嚴格按照中國 GB、HG 標準和美國 API 等標準設計、制造、驗收。密封面硬度達到規定要求,寬度超過標準。
售前服務
產品介紹,技術交流,非標產品設計,疑難解答。
售中服務
1、守信合同,保證及時供貨,隨時保持與客戶聯系
2、對特殊或復雜的產品,我廠安排技術人員對用戶進行產品使用、故障排除、調式及維修進行培訓和指導。
售后服務
1、駱盈產品質保期為自出廠起 12 個月,實行“三包”服務(包退、包換、包修)。
2、產品在使用中我廠定期組織技術、檢查人員進行訪問,征詢用戶對產品質量、使用狀況、改進意見等方面的反饋,以便進一步提高產品質量。
3、對用戶投訴產品質量問題,快速做出反映,售后服務人員在 24-36 小時(省外 48 小時)趕赴現場。
4、對售后服務,要求用戶填寫服務后的質量反饋表,并做出鑒定意見,共同提高駱盈的產品質量與服務質量。
1、客戶采購清單請傳真至 021-64207088 E-mail:luoying@luoyingsh.com,或來電咨詢 021-62212627。
2、收到客戶采購清單,為客戶提供產品型號選型與報價(價格清單)。
3、具體商定:交貨期、特殊要求等事宜。
訂貨須知
1、客戶對產品有特殊要求,須在訂貨合同中提供以下說明:
(1)結構長度
(2)連接形式
(3)公稱直徑、全通徑、縮徑、管道尺寸
(4)用介質及溫度、壓力范圍
(5)實驗、檢驗標準及其他要求本廠可根據客戶特殊要求配置定做和設計特殊產品。
2、本廠可根據客戶特殊要求配置定做和設計特殊產品。
3、如由客戶提供確定的產品類型和型號時,客戶應正確說明其型號的含義和要求,在供需雙方理解一致的條件下簽訂合同。
您也可以聯系在線客服